お問合せ
資料請求
資料請求
お見積り見積り 来店予約来店予約
インスタグラム youtube facebook

モデルハウス紡ぎの家ー高津東ー

物件データ

  • 建物種別

    戸建て

  • 築年数

    約築30年

  • 間取り

  • 所在地

    八千代市高津東

  • 施工費用

  • 施工面積

  • 施工箇所

  • 工期

  • 家族構成

  • 建物種別

    戸建て

  • 築年数

    約築30年

  • 間取り

  • 所在地

    八千代市高津東

  • 施工費用

  • 施工面積

  • 施工箇所

  • 工期

家づくりのご要望・目的

 

築30年戸建てリノベーションモデルハウス「紡ぎの家」が完成しました。

 

 

 

 

 

次のライフステージへ

新たな “ここちよい暮らし” を紡ぐ  

 

※見学会は終了しました。たくさんのご来場、ありがとうございました。

  リビングイン階段 2021年カツデンアーキテック様 写真コンテスト【佳作】受賞

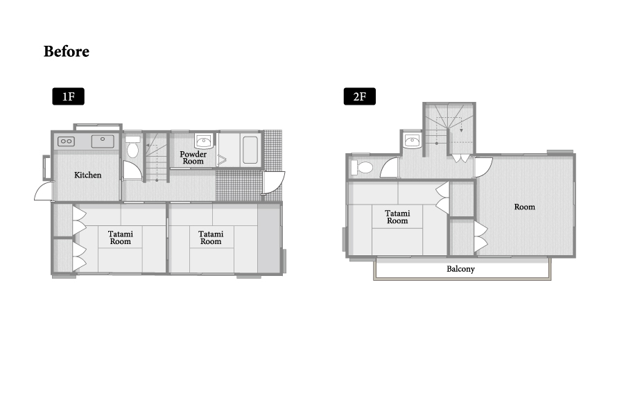
Before

After

こだわりのポイント

リビングイン階段
2021年カツデンアーキテック様 写真コンテスト【佳作】受賞
https://kdat.jp/contest/2021result/

こちらの事例もおすすめです!

施工事例選択のトップに戻る

リフォームをはじめたい方・リフォームをご検討の方

今すぐリフォームをはじめたい方
ご相談・お見積りのご相談はこちら
お電話でも受け付けております0120-888-139受付時間  9:00~17:00
TYPE
建物タイプから事例を見る
一戸建て
マンション
KEYWORD
こだわりから探す
+ デザイン
ペットと暮らす
耐震リフォーム
二世帯住宅
ASOBI
子供がよろこぶ
大規模リフォーム
収納充実
オーダー家具
ガーデン・エクステリア

30周年大感謝祭|ありがとうを、暮らしに★選べるプレゼント★オプションプレゼント★特別割引など 30周年大感謝祭|ありがとうを、暮らしに★選べるプレゼント★オプションプレゼント★特別割引など