お問合せ
資料請求
資料請求
お見積り見積り 来店予約来店予約
インスタグラム youtube facebook

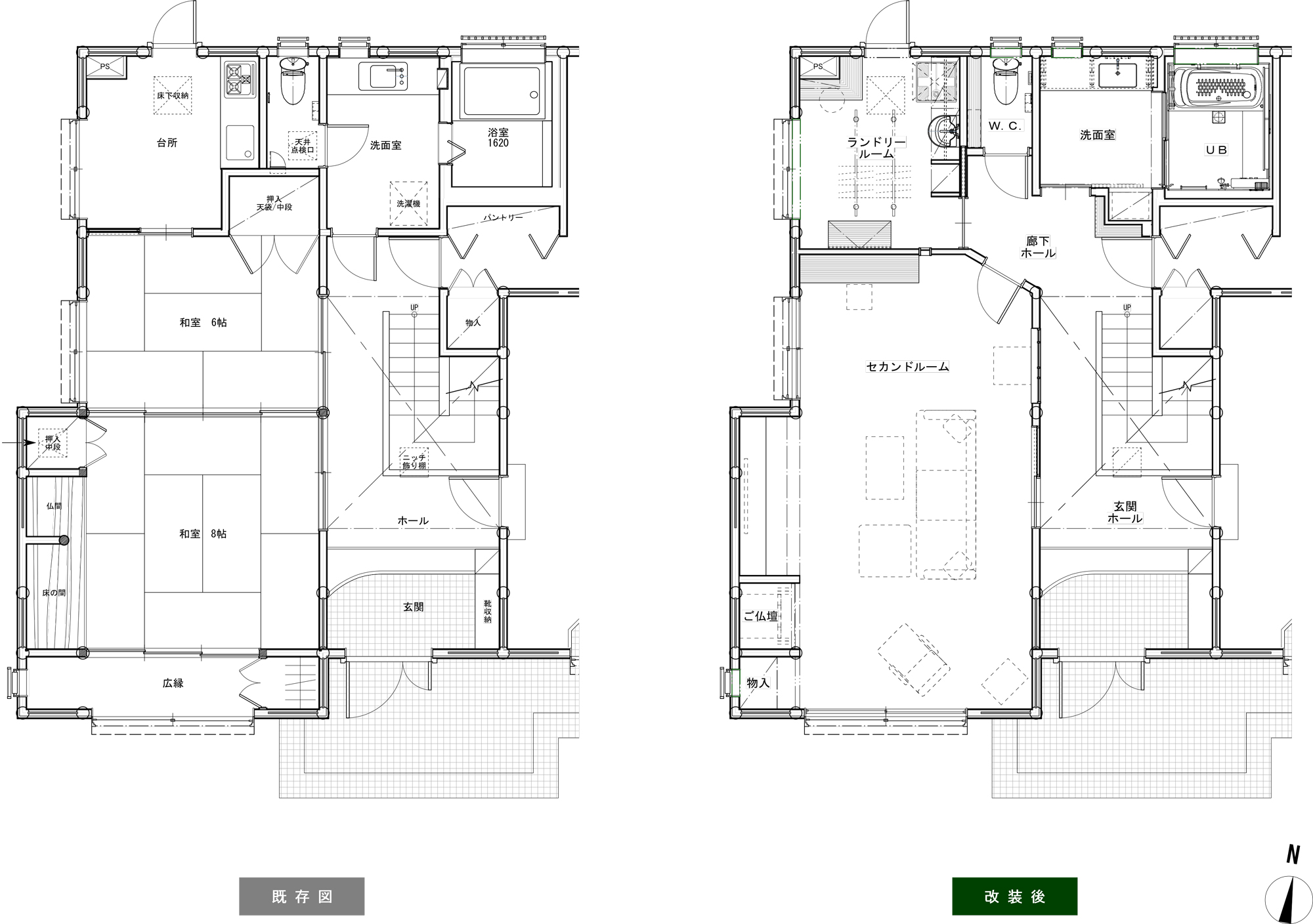
余生を楽しむセカンドルーム クラシカル×モダンスタイル

物件データ

  • 建物種別

    戸建て

  • 築年数

  • 間取り

  • 所在地

    八街市

  • 施工費用

  • 施工面積

  • 施工箇所

  • 工期

  • 家族構成

  • 建物種別

    戸建て

  • 築年数

  • 間取り

  • 所在地

    八街市

  • 施工費用

  • 施工面積

  • 施工箇所

  • 工期

家づくりのご要望・目的

【リフォームのきっかけ】
2世帯住宅の親世帯部分、使っていないスペースの有効活用として
和室二間を余生を楽しむ広い洋間のワンルームにしたい・・・
セカンドステージへの封切りにリフォームのご依頼をいただきました。

【リフォーム前のお悩み】
台風の影響で天井から雨漏れしてしまい、和室が使えない状態になっていました
お風呂や洗面台も交換のタイミング、ドアの勝手が使いにくいなど暮らしの中に
プチストレスがありました。

担当プランナー

M.Yamamoto

新たな暮らしのはじまりに。2か所の造作窓や随所の飾り棚、壁紙の貼り分け・・・重なる打合せの中で細部までこだわった唯一無二の空間が再現されました。ご自宅で眠っていた絵や照明器具を配置して、シークエンスの楽しめる豊かな空間となりました!

こだわりのポイント

【リフォーム箇所】2室を繋ぐ明かりとり
【ポイント】 ご主人こだわりの造作の格子窓、多様なガラスづかいで廊下階段ホールへ室内の灯りと人のシルエットをこぼす効果的な役割をしています。ランドリーとセカンドルームの間はスリット状のガラス窓でお互いの気配が感じられます

【リフォーム箇所】ペールオレンジのランドリールーム
【ポイント】 単純作業で退屈になりがちな洗濯タイムが楽しくなるように、奥様の好きな淡いオレンジ色の壁紙とお気に入りのペンダント照明を吊るして煌めきをプラスしました。
洗う→干す→たたむ/アイロン掛けを一つの空間で完結できるので効率的です

【箇所】 コーナー飾り棚
【ポイント】出隅コーナーの目線の高さをくぼみにすることで、角の圧迫感を緩和しています。
階段から下った正面にアイストップ。眠っていたレコードやアートをミニスポットライトで照らして楽しみます。各室を繋ぐ交差点に趣味のディスプレイコーナーを設けました。

お客様の声

安藤さんの穏やかな人柄とお気遣い、また、山本さんの抜群のプランニングセンスと押しの強さ(笑)が、グリーンランドさんに決めた理由でした。
間取りを大きく変更することになり、こちらのわがままと多くのこだわりがどんどんイメージされるにつれて、時間を忘れるほどの打ち合わせは、本当に楽しいものでした。
おかげ様で、動線や収納のよさはもちろん、クールなのにとても落ち着いたここちいい空間に仕上げていただきました。
洗面所、バスルーム、トイレ、ランドリールーム、吹き抜けホール、セカンドルームそのすべてが生活に潤いを与えてくれる空間なんです。
お世辞抜きで、グリーンランドさんにお願いして本当によかったと思います。安藤さんの、さり気ない”個人的意見”、山本さんの、愛ある”ダメ出し”、そして伊藤さんの誠実で素早い現場力と職人さんたちのワンチームのおかげです。
グリーンランドさんの社風、風通しがいいのですね。オフィスネームで呼び合うなんてなかなかないですよ。楽しい雰囲気がそのまま空間として形になって、部屋いっぱいに広がる満足感。そこで生活できることの幸福感はかけがえのないものです。
これを読んでいる、リフォーム検討中のみなさん!グリーンランドさん、本当におすすめですよ。(私はグリーンランドさんのまわし者ではありませんが(笑))
そして、ルイさん、ロビンさん、アバロンさん、皆々様、これからもよろしくお願いします。

直筆のアンケートを見る

こちらの事例もおすすめです!

施工事例選択のトップに戻る

リフォームをはじめたい方・リフォームをご検討の方

今すぐリフォームをはじめたい方
ご相談・お見積りのご相談はこちら
お電話でも受け付けております0120-888-139受付時間  9:00~17:00
TYPE
建物タイプから事例を見る
一戸建て
マンション
KEYWORD
こだわりから探す
+ デザイン
ペットと暮らす
耐震リフォーム
二世帯住宅
ASOBI
子供がよろこぶ
大規模リフォーム
収納充実
オーダー家具
ガーデン・エクステリア

30周年記念、千葉テレビでCM放映中 30周年記念、千葉テレビでCM放映中
30周年大感謝祭|ありがとうを、暮らしに★選べるプレゼント★オプションプレゼント★特別割引など 30周年大感謝祭|ありがとうを、暮らしに★選べるプレゼント★オプションプレゼント★特別割引など